VILLA DEL 700' CON SPLENDIDO PARCO SECOLARE
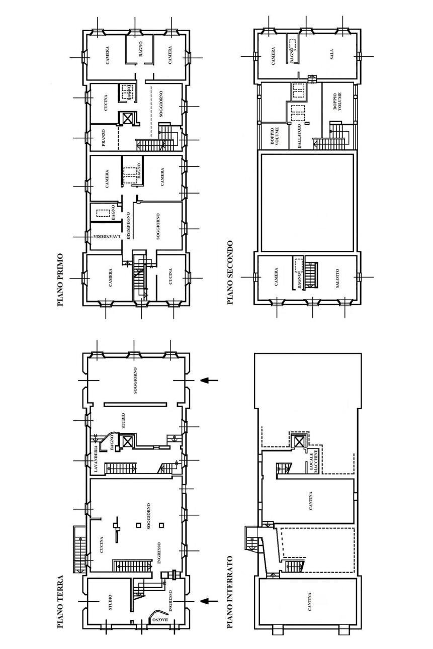
nel sapore delle campagne e colline bolognesi, adiacente alla romanica ozzano dell'emilia e della sua storica area archeologica di claterna, a ridosso del confine del parco dei gessi, si cela un'elegante complesso con villa bifamiliare del 700' circondata da uno splendido parco con alberi secolari. situata sulle prime colline di ozzano, in posizione tranquilla e riservata, comoda a tutti i servizi e a pochi minuti dall'autostrada, dalla via emilia e dalla ferrovia, per comodi e rapidi collegamenti con bologna, aeroporto e la riviera romagnola. la villa restaurata verso la fine degli anni 90', trova una propria armonia tra l'archittetura settecentesca e la modernita' degli interni. la proprieta' comprende: la villa con due appartamenti cielo / terra disposti su tre livelli, per circa 600 mq., di cui uno con ascensore e un parco con alberi secolari di circa 6000 mq. soggiorni con camino, riscaldamento autonomo, sistema di allarme e cantine. €. 1.390. 000,00 + volendo pertinenze presenti nel complesso, comprendenti un ex fienile di 400 mq. circa, trasformabile in abitativo, un piccolo fabbricato di circa 70 mq. e 2.000 mq. di parco a €. 260.000,00














































