ZONA SAN DONATO - VIA BALDA
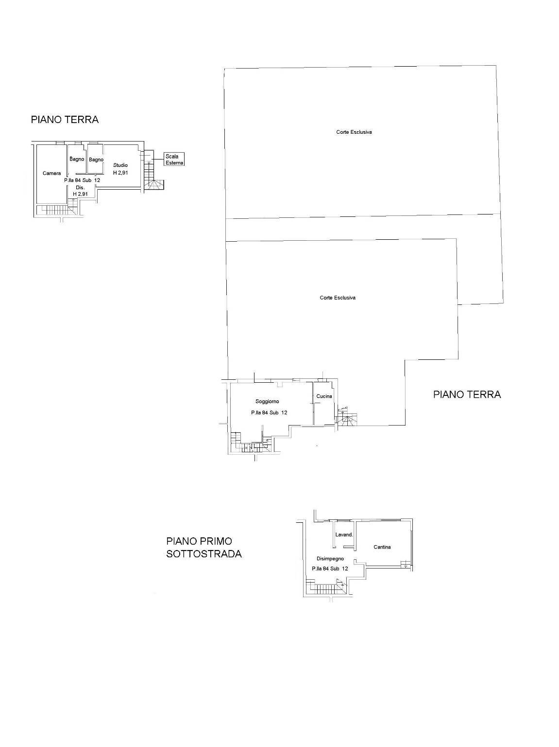
a poca distanza dal centro, in posizione tranquilla ma non isolata, immersa nel verde, splendida porzione di villa cielo/terra con ingresso indipendente. la proprietà è circondata da un ampio giardino privato di circa 2.000 mq, curato e completamente recintato, arricchito da una bellissima piscina riscaldata con possibilità di copertura invernale tramite cupola trasparente. l’abitazione, di circa 180 mq, è così composta: piano terra: ampio soggiorno con affaccio su porticato esterno attrezzato con barbecue bagno ospiti piano primo: due camere da letto due bagni finestrati piano interrato: tavernetta bagno/lavanderia completano la proprietà: due garage ampia possibilità di parcheggio interno dotazioni: riscaldamento autonomo a gas aria condizionata la soluzione si presta anche ad attività ricettive, come b&b, grazie alla vicinanza alla fiera. il parco, ben mantenuto, include: -tettoie per zone relax -casetta in legno per ricovero attrezzi -campetto da calcio -area piscina € 670.000














































